3d visualiseerimine sarve moodul maja exterior v5 018 3d visualiseerimine sarve moodul maja exterior v5 018

Sarve

Inledning

Letar du efter ett kompakt modulhus?

– Perfekt som ett litet hem
– Idealisk som en semesterstuga
– Utmärkt för gästboende eller uthyrningsverksamhet
– Lämplig som ett seniorboende

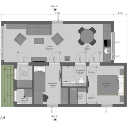
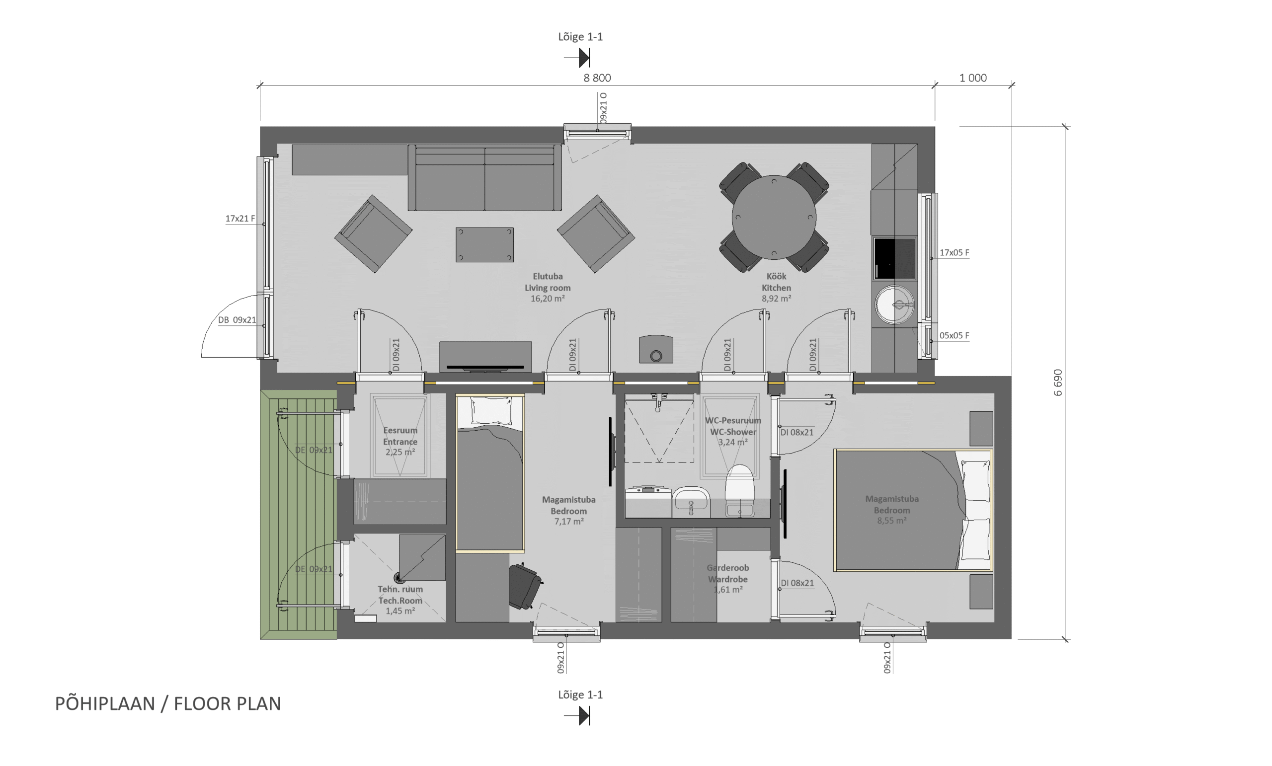
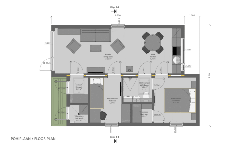
SARVE modulhuset är ett mångsidigt val som passar utmärkt som småhus eller fritidshus. Huset består av två moduler och erbjuder en modern och bekväm boendemiljö, där de unikt höga taken – på vissa ställen över 3 meter – skapar en rymlig och ljus atmosfär.

SARVE är utrustat med treglas energibesparande PVC-fönster och dörrar samt integrerade vatten- och avloppssystem, vilket ger modern boendekomfort. Det finns även möjlighet att installera takfönster både i duschrummet och i entrén för att släppa in mer naturligt ljus. Det rymliga kök-vardagsrummet är tillräckligt stort för att rymma en kamin, som skapar en varm och trivsam atmosfär i hemmet.

Tilläggsalternativ som golvvärme och luft-vattenvärmepumpar gör SARVE till ett utmärkt val för året-runt-boende. Varje detalj är noggrant utformad för att säkerställa hållbarhet och komfort, och kombinerar kompakt format, kvalitet och flexibilitet för att möta vardagens behov.

SARVE modulhuset är byggt för att hålla – det är enkelt att flytta och behåller sitt värde även när dina behov förändras över tid.

Tekniska data:

  • Boyta 49,40 m²
  • Byggnadsarea 60,00 m²
  • Bredd  6 690 mm
  • Längd 9 800 mm
  • Höjd 3 950 mm
  • Vikt 15 000 kg

Våra kompaktmoduler är designade och tillverkade med hänsyn till Nordens tuffa klimatförhållanden samt de byggnormer och höga standarder som gäller för småhus och fritidshus. Alla tekniska lösningar och konstruktiva detaljer är noggrant genomtänkta för att säkerställa byggnadens hållbarhet i årtionden och samtidigt erbjuda en trygg och energieffektiv boendemiljö.

I våra standardprodukter använder vi högkvalitativ mineralull (λ = 0,035 W/m·K), vilket ger utmärkta värmeisoleringsegenskaper:

  • Bottenbjälklag (GF): 220 mm isolering, U = 0,171 W/(m²K)
  • Ytterväggar (EW): 150 mm isolering, U = 0,243 W/(m²K)
  • Tak (RO): 250 mm isolering, U = 0,165 W/(m²K)

På kundens begäran kan vi även erbjuda ännu mer energieffektiva lösningar genom att använda isoleringsprodukter med bättre värmeledningsförmåga.

Tack vare genomtänkta konstruktioner uppnår våra småhus en balans mellan energieffektivitet, hållbarhet och boendekomfort.

Vårt pris från inkluderar en färdigställd modulbyggnad (invändigt och utvändigt) på vår fabriks gårdsplan.

Pris från 82 320 EUR

Hittade du inte ett passande erbjudande?