NASVA PIC LIVE Ext FL GG 01 Nrw NASVA PIC LIVE Ext FL GG 01 Nrw

Nasva

Inledning

Letar du efter ett trivsamt och funktionellt extra utrymme till din tomt eller trädgård?

– passar som småhus eller fritidshus
– idealiskt för gästboende eller uthyrningsverksamhet
– en praktisk lösning för hemmakontor eller mindre företagslokal
– ett utmärkt val även som seniorbostad

Om du känner igen dina behov i dessa rader, då är det kompakta modulhuset NASVA precis rätt för dig.

NASVA är ett enmodulhus med platt tak, tillgängligt i två olika funktionella konfigurationer. Detta ger dig möjlighet att välja den lösning som bäst motsvarar dina behov:

  • Stort öppet utrymme – som en öppen och fritt planeringsbar yta, där ett stort och ljust rum gör det möjligt att utforma byggnaden exakt för det syfte du önskar: exempelvis studio, arbetsrum, mindre företagslokal eller kreativ ateljé.
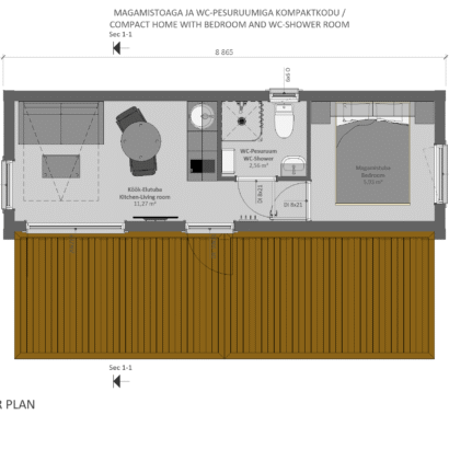
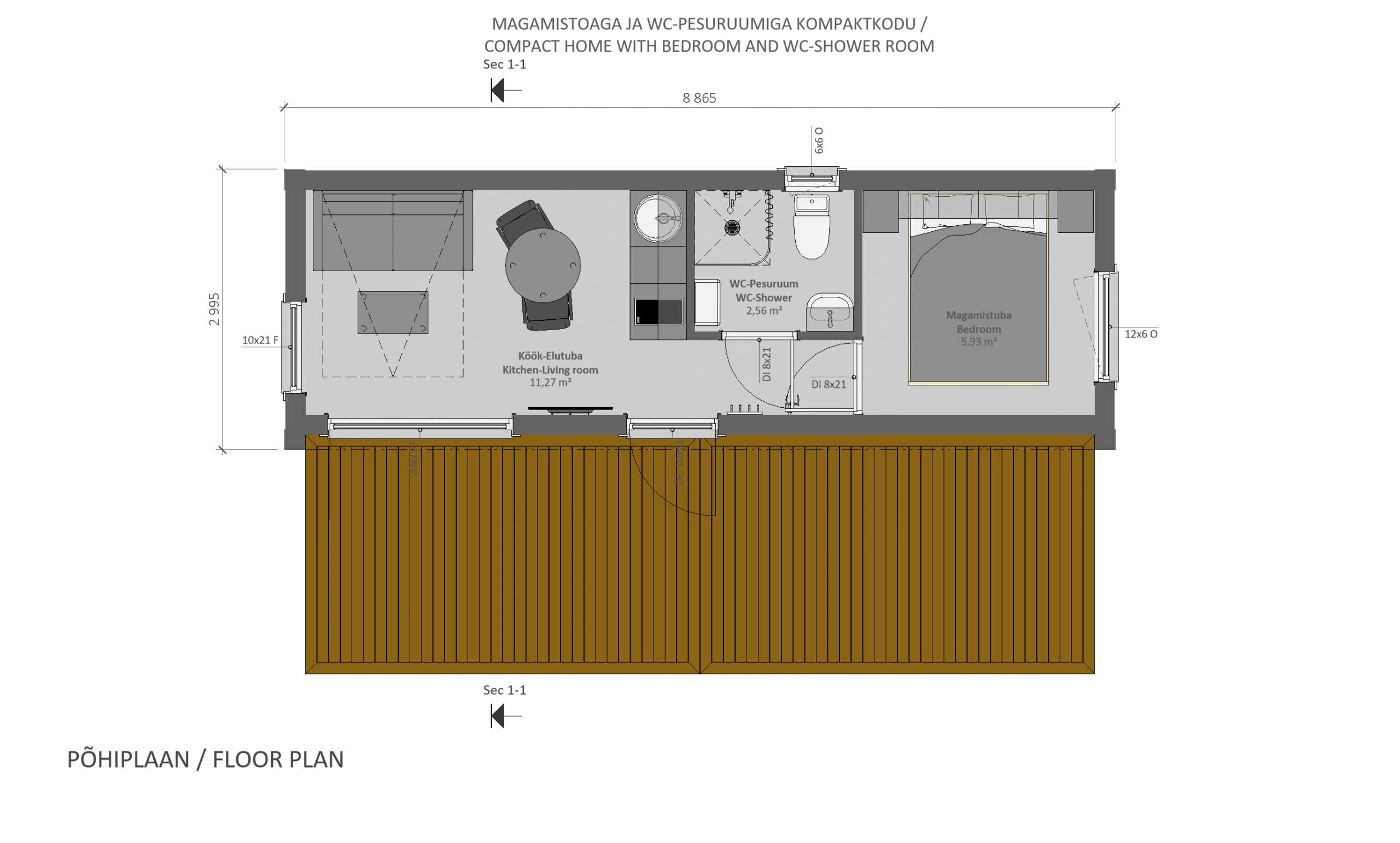
  • Kompakt hem med sovrum och badrum – ett kompakt modulhus med ljust kök-vardagsrum, ett mysigt dubbelrum samt ett rymligt och funktionellt badrum. Passar utmärkt för en liten familj eller som gästboende.

Planlösningen samt storleken och placeringen av fönster och dörrar kan anpassas efter kundens önskemål. Detta gör NASVA till en flexibel lösning för många olika användningsområden. Exempel på tillgängliga variationer finns bland ritningarna.

NASVA modulhuset är byggt för att hålla – det är enkelt att flytta och behåller sitt värde även när dina behov förändras över tid.

Tekniska data:

  • Boyta 20,30 m²
  • Byggnadsarea 26,50 m²
  • Bredd 2 995 mm
  • Längd 8 864 mm
  • Höjd 3 000 mm
  • Vikt 6 700 kg

Våra kompaktmoduler är designade och tillverkade med hänsyn till Nordens tuffa klimatförhållanden samt de byggnormer och höga standarder som gäller för småhus och fritidshus. Alla tekniska lösningar och konstruktiva detaljer är noggrant genomtänkta för att säkerställa byggnadens hållbarhet i årtionden och samtidigt erbjuda en trygg och energieffektiv boendemiljö.

I våra standardprodukter använder vi högkvalitativ mineralull (λ = 0,035 W/m·K), vilket ger utmärkta värmeisoleringsegenskaper:

  • Bottenbjälklag (GF): 220 mm isolering, U = 0,171 W/(m²K)
  • Ytterväggar (EW): 150 mm isolering, U = 0,243 W/(m²K)
  • Tak (RO): 250 mm isolering, U = 0,165 W/(m²K)

På kundens begäran kan vi även erbjuda ännu mer energieffektiva lösningar genom att använda isoleringsprodukter med bättre värmeledningsförmåga.

Tack vare genomtänkta konstruktioner uppnår våra småhus en balans mellan energieffektivitet, hållbarhet och boendekomfort.

Vårt pris från inkluderar en färdigställd modulbyggnad (invändigt och utvändigt) på vår fabriks gårdsplan.

Pris från 28 900 EUR

Hittade du inte ett passande erbjudande?